£240,000 Guide Price

Head Street, , Halstead

  • GUIDE PRICE £240,000 - £250,000
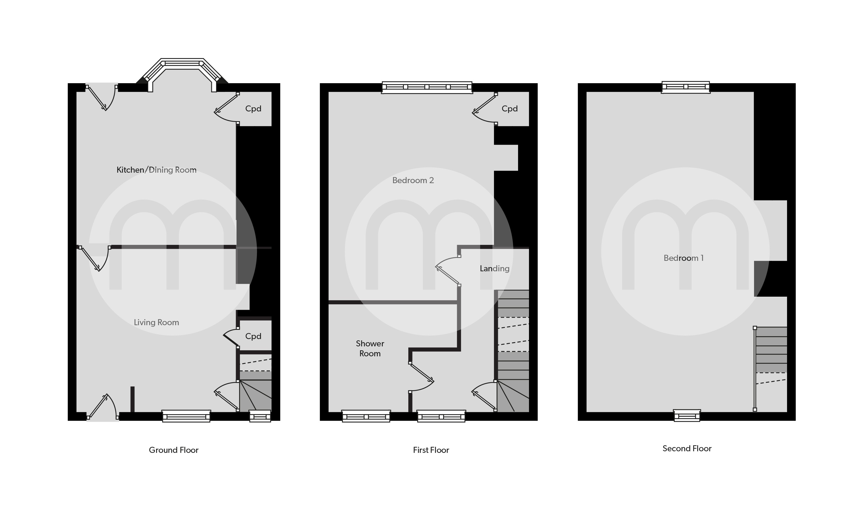
  • A Unique And Character Filled Three Storey Home
  • Modern Kitchen/Diner
  • Main Bedroom With Vaulted Ceiling And Beams
  • Further Double Bedroom
  • Modern Shower Room
  • Landscaped Courtyard Style Garden With Porcelain Patio
  • New Boiler With 10 Year Warranty
  • Recently Redecorated Throughout And New Carpet
Floorplan Brochure Arrange a Viewing

Location

Guide Price £240,000 - £250,000. This charming and character-filled two-bedroom terraced home offers a unique three-storey layout that perfectly blends period features with contemporary living. Situated close to Halstead High Street, the property boasts a cosy living room, a modern kitchen/diner, a beautifully landscaped courtyard style garden with a porcelain patio, and a vaulted ceiling with beams in the main bedroom, providing a distinctive and inviting atmosphere throughout.

Set in the heart of Halstead, this property benefits from close proximity to the bustling high street, where a variety of independent shops, cafes, and amenities create a vibrant community atmosphere. Halstead itself offers excellent transport links and local schools, making it an attractive location for families and professionals alike. Enjoy the convenience of town centre living while retreating to the peace and privacy of this unique home.

Upon entering, you are welcomed by a cosy living room that serves as a comfortable retreat. The warm and intimate space is perfect for relaxing evenings or entertaining guests. Natural light filters through the windows, highlighting the charming features and creating a homely ambiance that sets the tone for the rest of the property.

The modern kitchen/diner is a true heart of the home, offering a generous area for cooking and dining. Equipped with contemporary fittings and ample storage, the kitchen combines functionality with style. The dining area easily accommodates a table for family meals, making this space ideal for both everyday living and entertaining.

Upstairs, on the second floor, the main bedroom impresses with its vaulted ceiling and exposed beams, giving it a spacious yet cosy feel. This room effortlessly blends character with comfort, offering a tranquil space to unwind. There is a further double bedroom, equally well proportioned and perfect for family, guests, or a home office. The modern shower room has been thoughtfully designed with sleek fixtures and a fresh, clean finish. 

One of the standout features of this home is the landscaped courtyard-style garden, which features a stylish porcelain patio. This outdoor space is ideal for alfresco dining or simply enjoying a quiet moment away from the hustle and bustle and comes with outdoor lighting. The garden enhances the overall appeal of the property, offering a private and easy-to-maintain retreat.

The property also comes with a new boiler which has a 10 year warranty. 

This unique terraced house combines period charm with modern living to create a delightful home with a character all its own. Whether you’re drawn to the vaulted beams in the bedroom, the stylish kitchen/diner, or the charming garden, this property offers an exceptional opportunity to live close to the amenities of Halstead High Street in a home full of warmth and character.

Room Measurements

Living Room

3.56m x 2.72m (11' 8" x 8' 11")

Kitchen/Diner

3.81m x 3.68m (12' 6" x 12' 1")

Landing

Bedroom Two

4.14m x 3.56m (13' 7" x 11' 8")

Shower Room

2.69m x 2.29m (8' 10" x 7' 6")

Second Floor

Bedroom One

6.32m x 2.26m (20' 9" x 7' 5")

Outside

One of the standout features of this home is the landscaped courtyard-style garden, which features a stylish porcelain patio. This outdoor space is ideal for alfresco dining or simply enjoying a quiet moment away from the hustle and bustle. The garden enhances the overall appeal of the property, offering a private and easy-to-maintain retreat.