£240,000 Offers in Excess of;

Spencer Square, , Braintree

  • Two Bedroom Terraced House
  • Sought After Village Of Bocking
  • Short Drive To Braintree Town Centre
  • Ideal For First Time Buyers & Buy To Let Investors
  • Utility Room
  • Modern Kitchen/Diner
  • Charming Period Features Throughout
  • Presented To An Excellent Standard Throughout
  • UPVC Windows & Gas Central Heating
  • Communal Parking Area
Floorplan Brochure Arrange a Viewing

Location

Michaels Property Consultants are delighted to present this charming two-bedroom period cottage, ideally positioned within a private cul-de-sac in the highly sought-after village of Bocking. Newly introduced to the market, this attractive home effortlessly combines characterful period features with tasteful contemporary upgrades, making it an ideal purchase for first-time buyers and buy-to-let investors alike seeking a low-maintenance purchase.

The accommodation comprises a cosy living room highlighted by a cast-iron fireplace, a spacious kitchen/diner fitted with sleek high-gloss units, a separate utility room with access to the rear garden, a family bathroom, and two well-proportioned double bedrooms.

Externally, the property benefits from a private and secluded rear garden, along with a communal parking area available on a first-come, first-served basis.

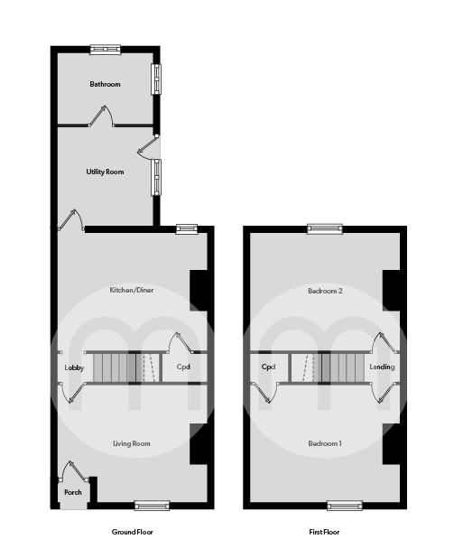
Ground Floor

Living Room

Kitchen/Diner

10' 9" x 10' 6" (3.28m x 3.20m)

Utility Room

8' 7" x 8' 6" (2.62m x 2.59m)

Bathroom

First Floor

Bedroom One

11' 9" x 10' 8" (3.58m x 3.25m)

Bedroom Two

11' 9" x 10' 5" (3.58m x 3.17m)

Outside

Rear Garden

Communal Parking Area