£600,000 Offers Over

Coggeshall Road, , Braintree

  • Three Bedroom Detached House
  • Generous Driveway & Part Converted Garage
  • Renovated To An Excellent Standard Throughout
  • Rewired & New Central Heating System
  • Garden Room/Studio With Air-Conditioning
  • High Spec Ground Floor Shower Room & First Floor Family Bathroom
  • Large 180' Rear Garden
  • Complete Onward Chain
  • Refitted 23' Kitchen Diner With Quartz Worktops
  • Original Period Features
Floorplan Brochure Arrange a Viewing

Location

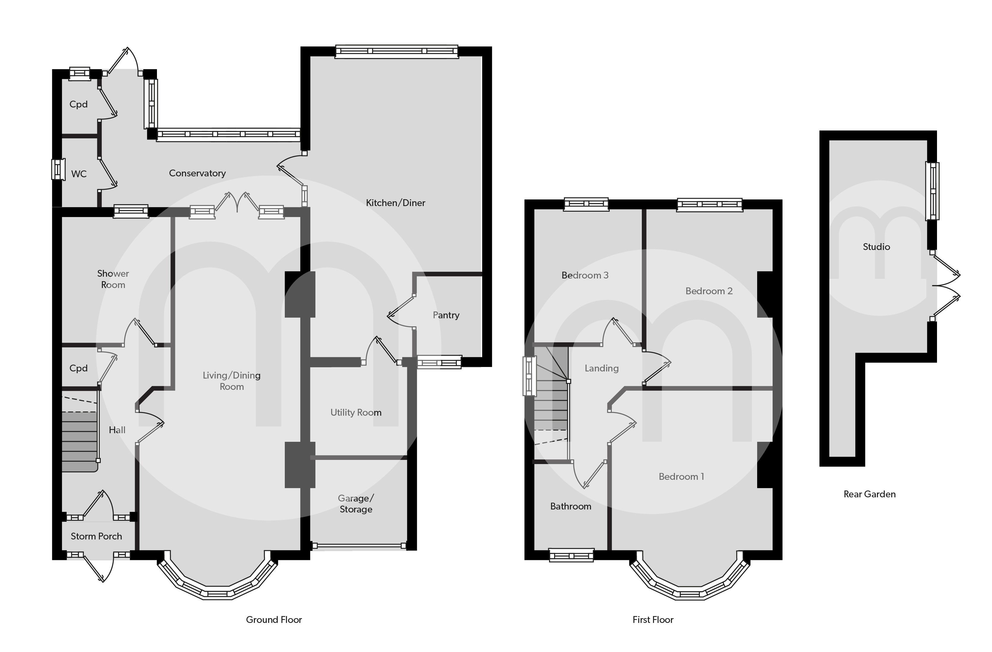
Michaels Property Consultants are delighted to bring to the market this extensively refurbished and deceptively spacious three bedroom detached house, boasting an elegant blend of period features with a contemporary twist. New to the market and offered for sale with a complete onward chain, this meticulously renovated period home enjoys high quality fixtures & Fittings throughout, some of which include quartz worktops, Amtico flooring, and cast iron radiators. The impressive ground floor comprises an entrance porch and hallway featuring an original stain-glass window, a large living room/diner which has two fireplaces and a bay window, a conservatory/sun-room, a 23' kitchen/diner with shaker-style units, a utility featuring under-floor heating, and a large shower room. To the first floor, you will find three well proportioned double bedrooms, and a family bathroom. Outside, further highlights include a large rear garden approaching 200' in length, a fully insulated studio with air-conditioning, a driveway which provides off road parking for multiple vehicles, and a part-converted garage with an electric roller door. 

Ground Floor

Porch

Entrance Hall

Shower Room

Living/Dining Room

30' 1" x 13' 10" (9.17m x 4.22m)

Conservatory With Brick-Built Storage Sheds

18' 1" x 5' 1" (5.51m x 1.55m)

Kitchen/Diner

23' 2" x 12' 9" (7.06m x 3.89m)

Utility

8' 4" x 8' 4" (2.54m x 2.54m)

First Floor

Bedroom One

15' 1" x 13' 10" (4.60m x 4.22m)

Bedroom Two

13' 1" x 11' 1" (3.99m x 3.38m)

Bedroom Three

9' 10" x 9' 1" (3.00m x 2.77m)

Family Bathroom

Outside

Rear Garden

Studio/Garden Room With Air-Conditioning

Driveway

Part-Converted Garage