£450,000 Guide Price £450,000-£475,000

Guinea Close, , Braintree

  • Sought After Kings Park Development
  • Off Road Parking For Multiple Vehicles
  • Converted Garage
  • Ground Floor Cloakroom
  • Generous Kitchen/Diner
  • En-Suite To Master Bedroom
  • Catchment Area For Lyons Hall Primary School
  • Replastered & Decorated Throughout
  • EV Charging Point
  • Guide Price £450,000 - £475,000
Floorplan Brochure Arrange a Viewing

Location

***GUIDE PRICE £450,000-£475,000***

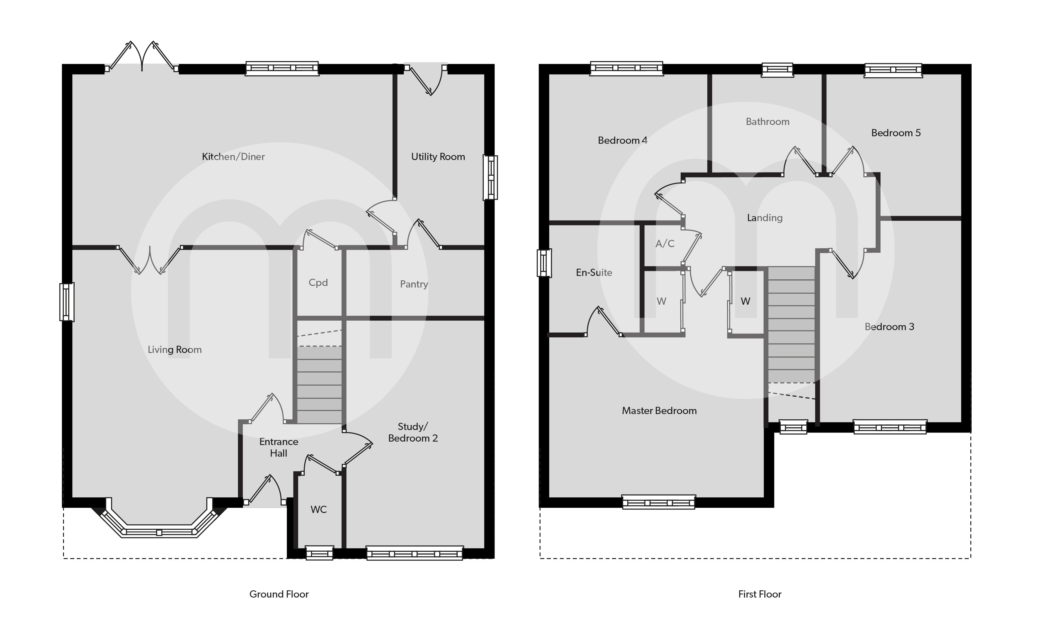
Michaels Property Consultants are delighted to present to the market this well established and spacious four bedroom detached house, occupying an enviable Cul-de-sac position, within the sought after and frequently requested Kings Park Development. New to the market and offered for sale in good decorative order throughout, we feel this superb property lends itself perfectly to any purchaser seeking a family home in an excellent area, especially given the close proximity to the highly regarded Lyons Hall Primary School. The accommodation comprises an entrance hall which provides access to the first floor, a cloakroom, a generous living room, a modern kitchen/diner featuring both French doors out to the rear garden and 'High Gloss' units, a utility and pantry, four well proportioned bedrooms with an en suite shower room to the master, and family bathroom. Outside, further highlights include a low maintenance rear garden, and a driveway which provides off road parking for as many as four vehicles. 

Ground Floor

Entrance Hall

Cloakroom

Living Room

17' 10" x 13' 1" (5.44m x 3.99m)

Kitchen/Diner

19' 8" x 10' 6" (5.99m x 3.20m)

Utility

10' 2" x 5' 3" (3.10m x 1.60m)

Pantry Room

8' 2" x 3' 11" (2.49m x 1.19m)

Study/Office

13' 9" x 8' 5" (4.19m x 2.57m)

First Floor

Bedroom One

13' 1" x 10' 6" (3.99m x 3.20m)

En-Suite

Bedroom Two

12' 8" x 8' 6" (3.86m x 2.59m)

Bedroom Three

9' 7" x 9' 5" (2.92m x 2.87m)

Bedroom Four

8' 10" x 8' 7" (2.69m x 2.62m)

Bathroom

Outside

Rear Garden

Driveway