£285,000 Offers Over

Boleyns Avenue, , Braintree

  • Two Double Bedrooms
  • Semi Detached
  • Garage & Driveway
  • 22' Kitchen/Diner
  • Generous Front & Rear Gardens
  • Living Room & Separate Dining Room
  • Downstairs Cloak Room
  • Modern Shower Room
Floorplan Brochure Arrange a Viewing

Location

Michael's Property Consultants are pleased to present this well-maintained two-bedroom semi-detached home which offers generous living space and plenty of potential to make it your own. Set back behind a good-sized front garden, the property also benefits from a private driveway and garage.

Inside, a porch leads into a welcoming entrance hall, with access to a bright living room featuring a cosy fireplace. A separate dining room opens directly onto the rear garden—ideal for relaxing or entertaining. The impressive 22ft kitchen provides ample space for cooking and storage, while a handy downstairs W/C adds convenience.

Upstairs, there are two spacious double bedrooms and a modern shower room.

Outside, the rear garden is neat and private, with additional storage.

Lovingly kept throughout and offering fantastic potential to update or extend (subject to planning), this home is perfect for a wide range of buyers looking to settle in a quiet, established area.

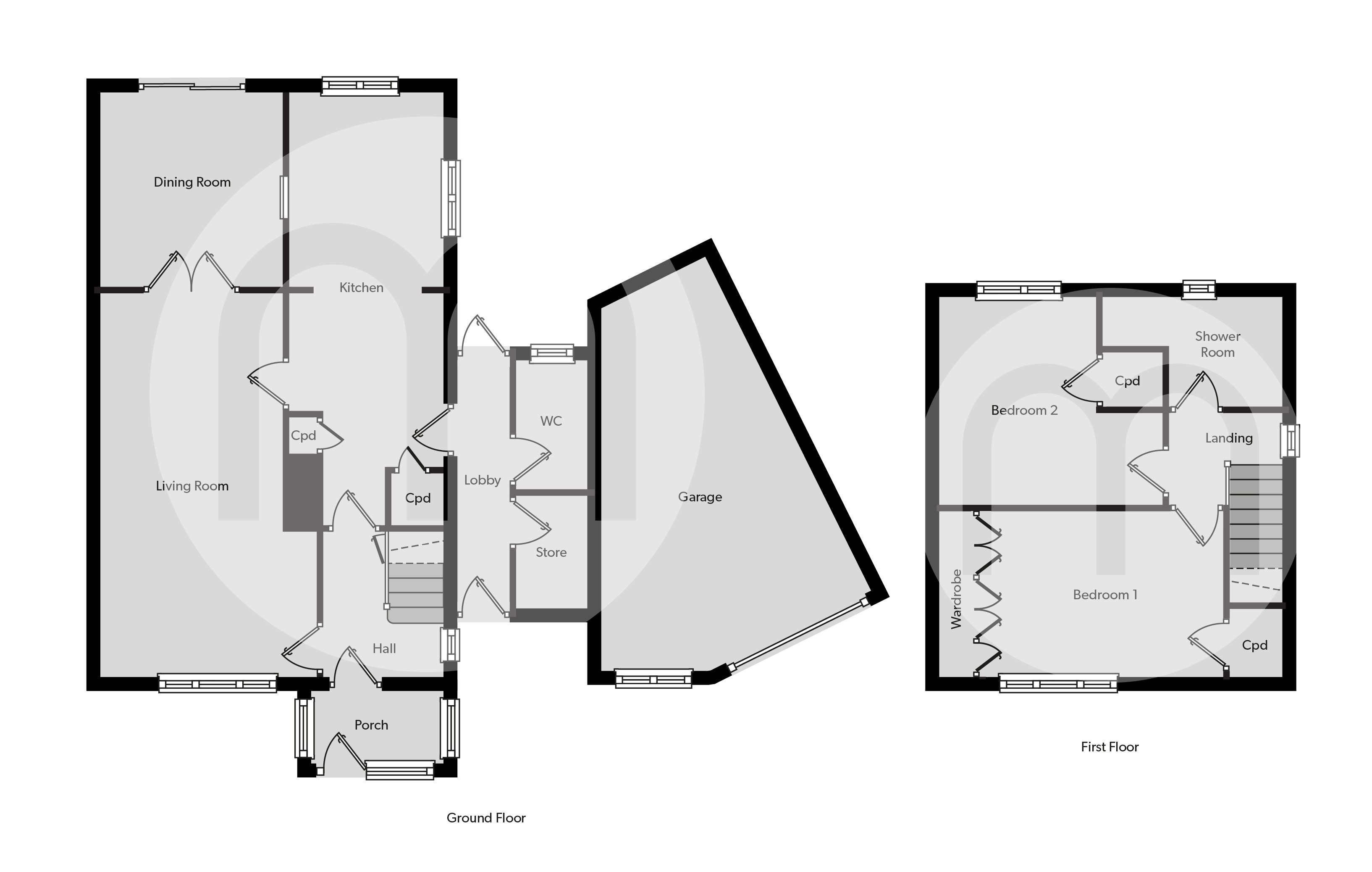
Ground Floor

Porch

Entrance Hall

8' 0" x 5' 11" (2.44m x 1.80m)

Kitchen

22' 5" x 8' 0" (6.83m x 2.44m)

Living Room

19' 5" x 9' 5" (5.92m x 2.87m)

Dining Room

10' 4" x 9' 3" (3.15m x 2.82m)

Cloakroom

First Floor

Bedroom One

12' 0" x 8' 7" (3.66m x 2.62m)

Bedroom Two

11' 1" x 10' 5" (3.38m x 3.17m)

Bathroom

Outside

Rear Garden

Garage & Drive